Sold104/11 Hillingdon Place, Prahran
SOLD prior to auction
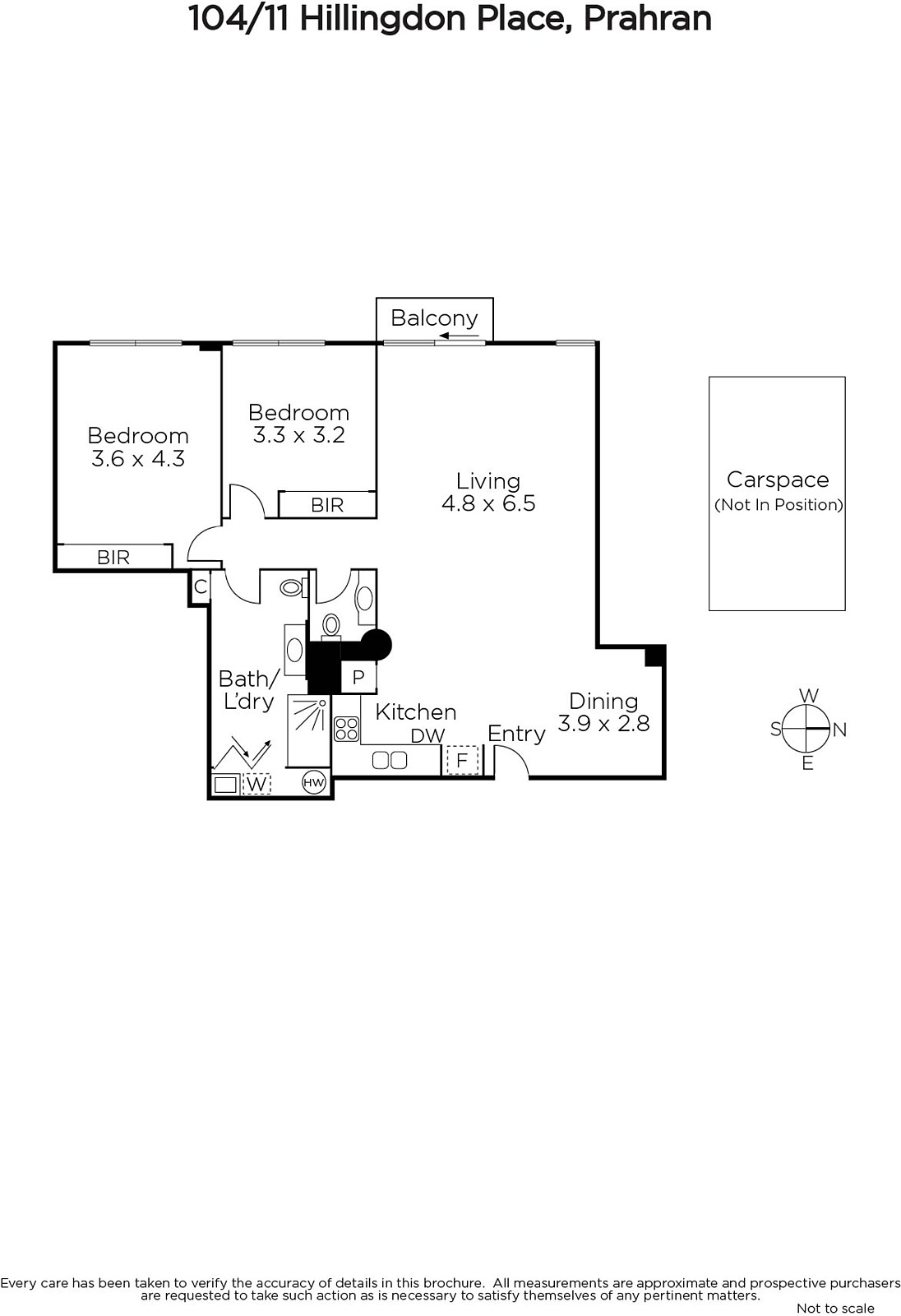
Smart and sophisticated with a New York style attitude, this sensational warehouse apartment is completely in sync with its exciting Chapel Street surroundings. Positioned in the exclusive Red Tulip building, soaring concrete ceilings, floor to ceiling windows and pale timber floors add an industrial edge to lofty light filled spaces for living and entertaining that include a sleek fully integrated kitchen with smeg appliances and a cocktail or breakfast balcony perched high above the building's quiet cul de sac entry. Beyond, two stylish double bedrooms with BIRs enjoy their own secluded zone with a powder room and uber chic bathroom featuring walk in shower, ample storage and cleverly hidden laundry. Double glazing, split system for cooling, wall heaters, video intercom entry, lift and secure basement carspace add comfort and convenience to a fabulous lifestyle or investment asset just steps from the energy of Melbourne's most iconic shopping, restaurant and nightlife destination.
Enquire about this property
Request Appraisal
Welcome to Prahran 3181
Median House Price
$1,695,000
2 Bedrooms
$1,396,000
3 Bedrooms
$1,822,500
4 Bedrooms
$2,421,250
Just 5 kilometres southeast of Melbourne's CBD, Prahran is an eclectic suburb known for its fashionable boutiques, thriving cafe culture, and dynamic nightlife.









