Sold100 Graham Street, Albert Park
Past, Present and Future Appeal
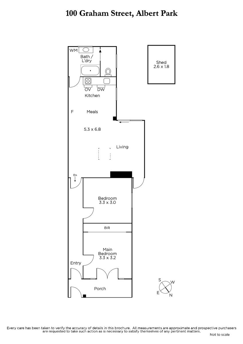
Perfectly situated moments to the beach, Victoria Ave shops, restaurants and trams, Albert Park Village, Gasworks Park and Albert Park College, this charming freestanding block-fronted Victorian residence's stylishly presented dimensions offer current day appeal with scope to extend (STCA) into the private west-facing garden with right of way access. The arched hallway flows through to the main bedroom with built in robe and access to the verandah, a second double bedroom and a bright bathroom with separate toilet. The spacious, light-filled living room, dining area and modern stone kitchen opens to the leafy garden with potential for off street parking from the rear lane. Offering both exciting investment and lifestyle rewards, it includes RC/air-conditioner and a garden shed.
Enquire about this property
Request Appraisal
Welcome to Albert Park 3206
Median House Price
$2,440,000
2 Bedrooms
$1,677,500
3 Bedrooms
$2,518,750
4 Bedrooms
$3,762,500
Albert Park, nestled just 3 kilometres from Melbourne’s CBD, is a picturesque suburb known for its blend of historic charm and modern amenities.















