Sold10 Willsmere Road, Kew
A fashionable tree-top treasure with three-car garage
Originally designed by renowned architect Harold Bloom and awash with high-set corner views across tree-lined Brougham Street and Willsmere Road, the sun-splashed living zones and seductively renovated interiors guarantee this home's success with families.
Merely metres from boutique Willsmere Village with acclaimed Ora and Willo cafes and an easy walk to Kew Primary School, Xavier, Trinity, Ruyton and Methodist Ladies' College, every generation will be impressed by this first-class lifestyle.
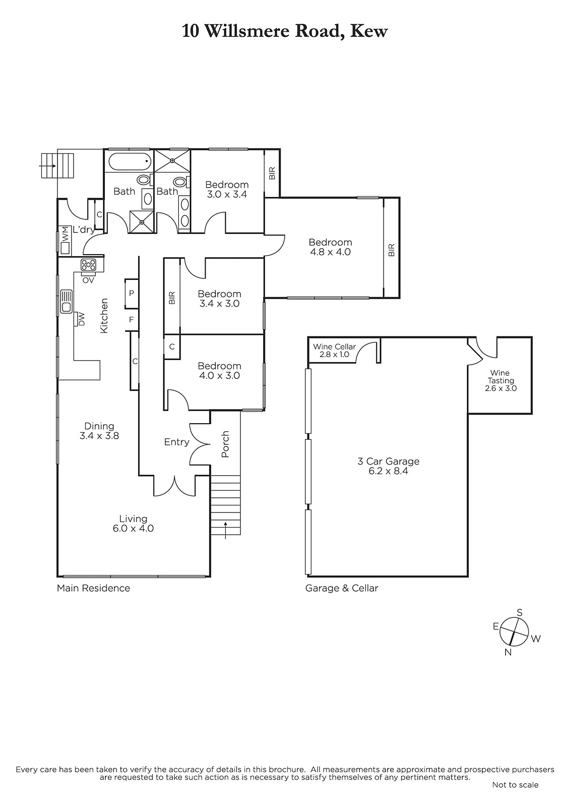
In the generous lounge and dining room a wall of glazing captures a glorious vista past the lush tree-tops and out to the Kinglake and Yarra Ranges. For outstanding entertaining, grab a fine wine from the cellar, share it with friends in the superb tasting room and then cook up a storm in the brand new family-sized kitchen with premium appliances and marble-look stone.
The four bedrooms are accompanied by two glamorous floor-to-ceiling tiled bathrooms, including one with a free-standing soaker tub. Ideal for children and pets, a private, high-fenced garden is a secure playspace matched with a garden alfresco. Features double brick construction, contemporary floorboards, ducted heating and a spacious three-car garage off Brougham Street.
Cycle along the Anniversary Trail to the Main Yarra Trail, shop with ease at thriving Kew Junction's providers, Woolworths and fine retailers, catch buses and trams to a variety of destinations, and jump on the freeway for a quick trip into the city.
Enquire about this property
Request Appraisal
Welcome to Kew 3101
Median House Price
$2,666,500
2 Bedrooms
$1,575,000
3 Bedrooms
$2,173,500
4 Bedrooms
$2,926,250
5 Bedrooms+
$4,580,000
Kew, positioned just 5 kilometres east of Melbourne's CBD, is renowned for its sophistication and elegance.
































