Sold10 Westley Street, Hawthorn East
Auction this Saturday at 1.30pm. Final Inspection Saturday from 1pm
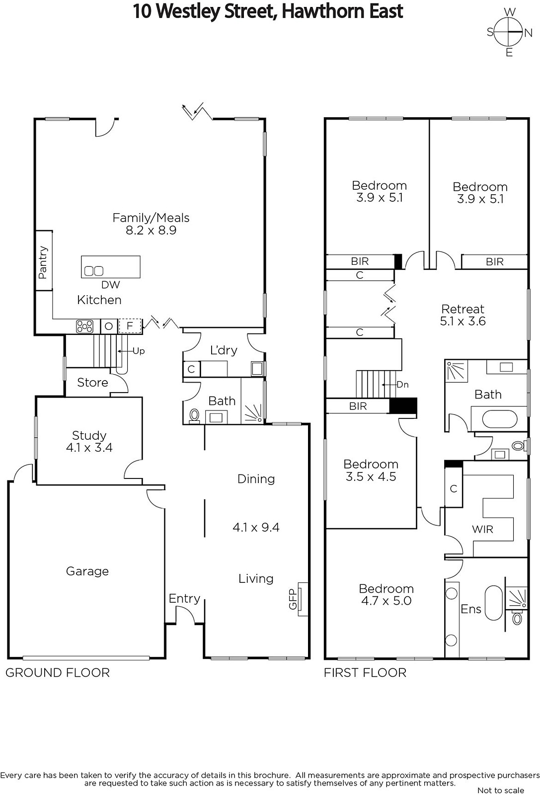
Introduced by a classic low maintenance garden and tranquil water feature, this impeccably maintained French provincial inspired two-storey family residence presents in as new condition. Originally designed and built by Glenwood Homes it is highlighted by luxurious appointments plus fixtures and fittings of the highest quality.
The spacious, light-filled interior creates an immediate impression offering plenty of zoned family accommodation and featuring a wide travertine entrance hall flowing past a combined formal living and dining room with gasFP, study, pristine bathroom and laundry to a state-of-the-art Miele and CaesarStone kitchen with island bench and an expansive family domain; opening to a generous paved alfresco dining area lined with ornamental trees and including an elevated solar heated pool - perfect for year round family entertaining and summer relaxation. Whilst upstairs comprises a full-width retreat and study area, four bedrooms including sumptuous parents with ensuite and large WIR plus a sparkling family bathroom and powder room. Other features include video intercom, alarm, ducted heating, cooling and vacuum, 2,000ltr rain water tank, sprinkler system, remote gates and double garage.
This exceptional home delivers an idyllic lifestyle in prestigious area in the Harcourt Hill precinct, within walking distance of several of Melbourne's finest schools, transport options, Sir William Angus or Rathmines Reserves and the eclectic Auburn Village or Camberwell Junction shopping.
















