Sold10 Sorrett Avenue, Malvern
Victorian Grandeur and Elegance
Inspect By Private Appointment at the Advertised Times.
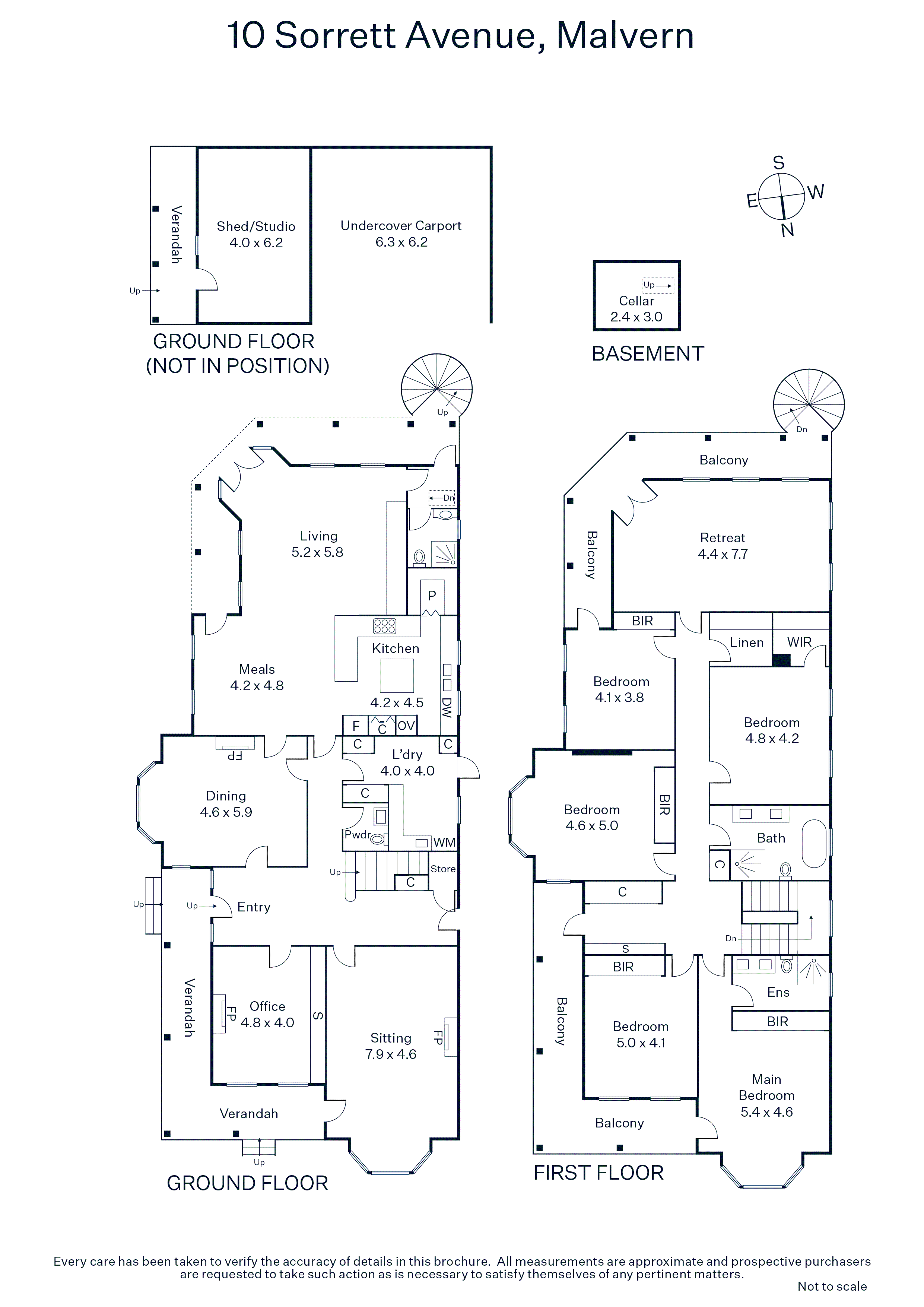
Displaying breathtaking grandeur and elegance, this illustrious c1890’s balconied Victorian residence is magnificently nestled within glorious established 1,142sqm approx. garden and pool surrounds in one of Malvern’s most sought after cul de sacs. Elaborate original features, dramatic proportions and contemporary designer flair are impressively combined to create an unforgettable backdrop to relaxed family living and entertaining on a lavish scale.
Radiantly light throughout, the imposing arched hallway featuring high ceilings and Baltic pine floors introduces a gracious sitting room, grand formal dining room and a refined executive study, all with marble fireplaces and all overlooking the surrounding gardens. Oak floors flow through the expansive open plan living and dining room served by a generous gourmet kitchen appointed with stone benches, AEG appliances and a walk in pantry. French doors extend the living out to the peaceful leafy gardens with extensive paving and a solar heated pool with diving board.
A broad staircase illuminated by an exquisite stained-glass window leads up to the beautiful main bedroom with robes, designer en suite and north-facing balcony, four additional king bedrooms with robes, a stylish bathroom and a spacious retreat opening to am L-shaped undercover balcony overlooking the pool.
Just a short stroll to the shops and restaurants in High St, Armadale and Glenferrie Rd, trams, Malvern station, prestigious schools and Malvern Gardens, it is also appointed with an alarm, security intercom, ducted heating and cooling, 3rd bathroom, powder-room, laundry, wine cellar, workshop/storeroom, auto gates and double garage. Land size: 1,142sqm (approx.)
Enquire about this property
Request Appraisal
Welcome to Malvern 3144
Median House Price
$2,635,000
2 Bedrooms
$1,660,000
3 Bedrooms
$2,322,000
4 Bedrooms
$3,472,500
5 Bedrooms+
$5,215,000
Malvern, located just 8 kilometres southeast of Melbourne's CBD, epitomises suburban sophistication and elegance.





























