Sold10 Prosper Parade, Glen Iris
Superb Family Living in a Picturesque Setting
Picturesque and leafy surroundings gives this attractive rendered brick family home instant appeal and stand out street presence; backed up by a superb Architect designed interior which delivers tranquil vistas of the native inspired gardens highlighted by magnificent mature Eucalypt and Jacaranda trees. The home is further enhanced by a prized Summerhill Estate precinct location close to numerous shopping and transport options, including the popular Leo's Fine Foods supermarket, the Ferndale & Anniversary trails plus an excellent array of schools - all underpinning its family lifestyle credentials.
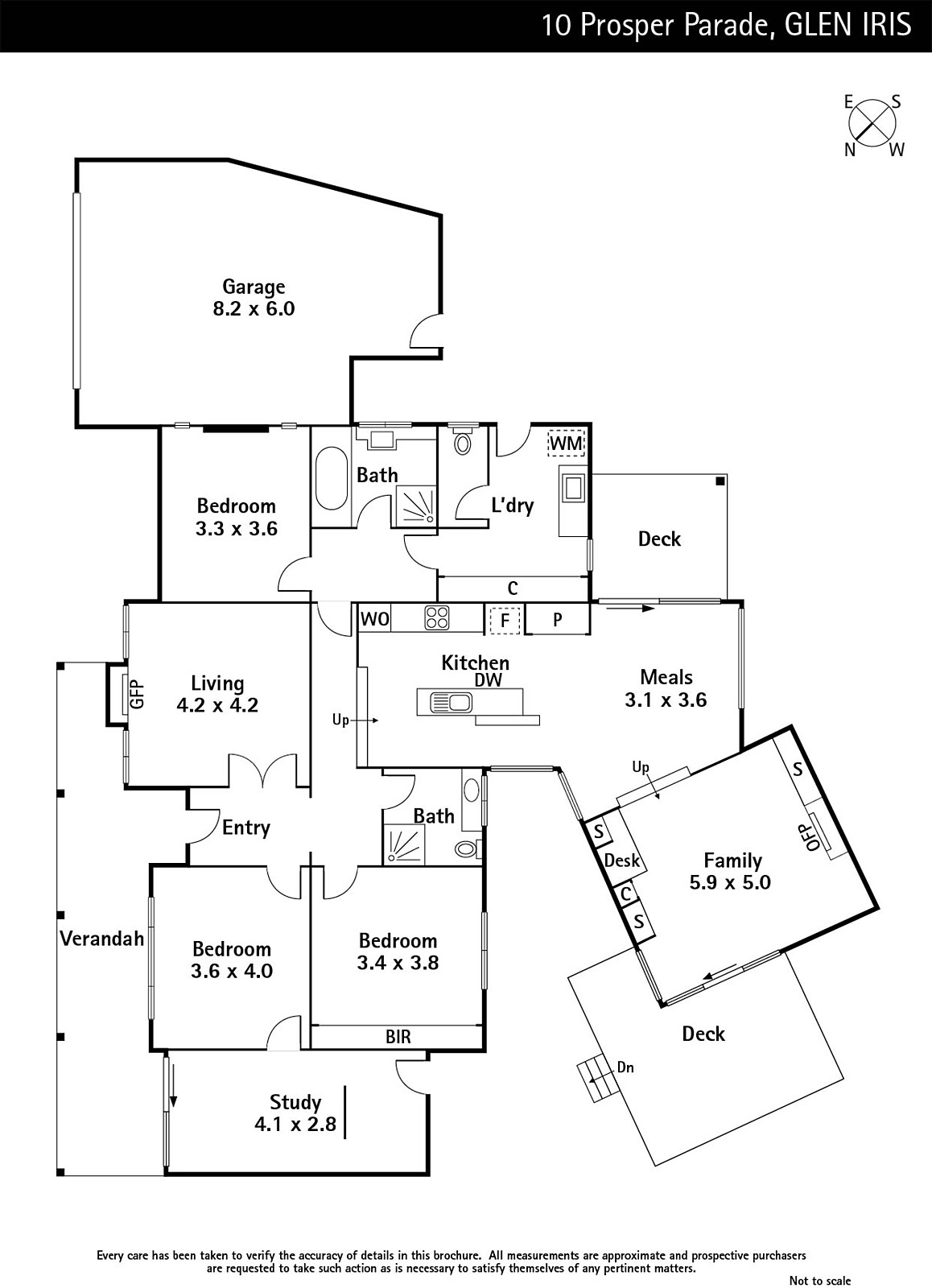
The accommodation features an entry hall, sitting room with OFP, three zoned bedrooms, two family bathrooms and study/office with separate entrance plus a laundry with WC. The family living areas designed to capitalise on northern sunshine also features polished timber floors and floor-to-ceiling glass with a stylish Bosch equipped kitchen, dining and living with OFP flowing to a deck and the garden -creating an inviting area for alfresco living and dining. Other features include alarm, Rinnai Energy-Saving heater, R/C air conditioner, water tanks 20,000ltrs, cubby house, remote double garage/storage plus off-street parking.
Enquire about this property
Request Appraisal
Welcome to Glen Iris 3146
Median House Price
$2,593,750
2 Bedrooms
$1,528,750
3 Bedrooms
$2,220,250
4 Bedrooms
$2,708,750
5 Bedrooms+
$3,823,500
Glen Iris, situated approximately 10 kilometres southeast of Melbourne's CBD, is a well-established and affluent suburb known for its leafy streets, spacious parks, and prestigious schools.












