Sold10 Moorhouse Street, Armadale
Elite Location, Exciting Potential
Exclusively situated in a prized pocket on the edge of High Street's fabulous boutiques and restaurants, this classic solid brick Victorian residence offers scope to preserve its authentic charm while reshaping its future with your own luxurious renovation and extension (STCA).
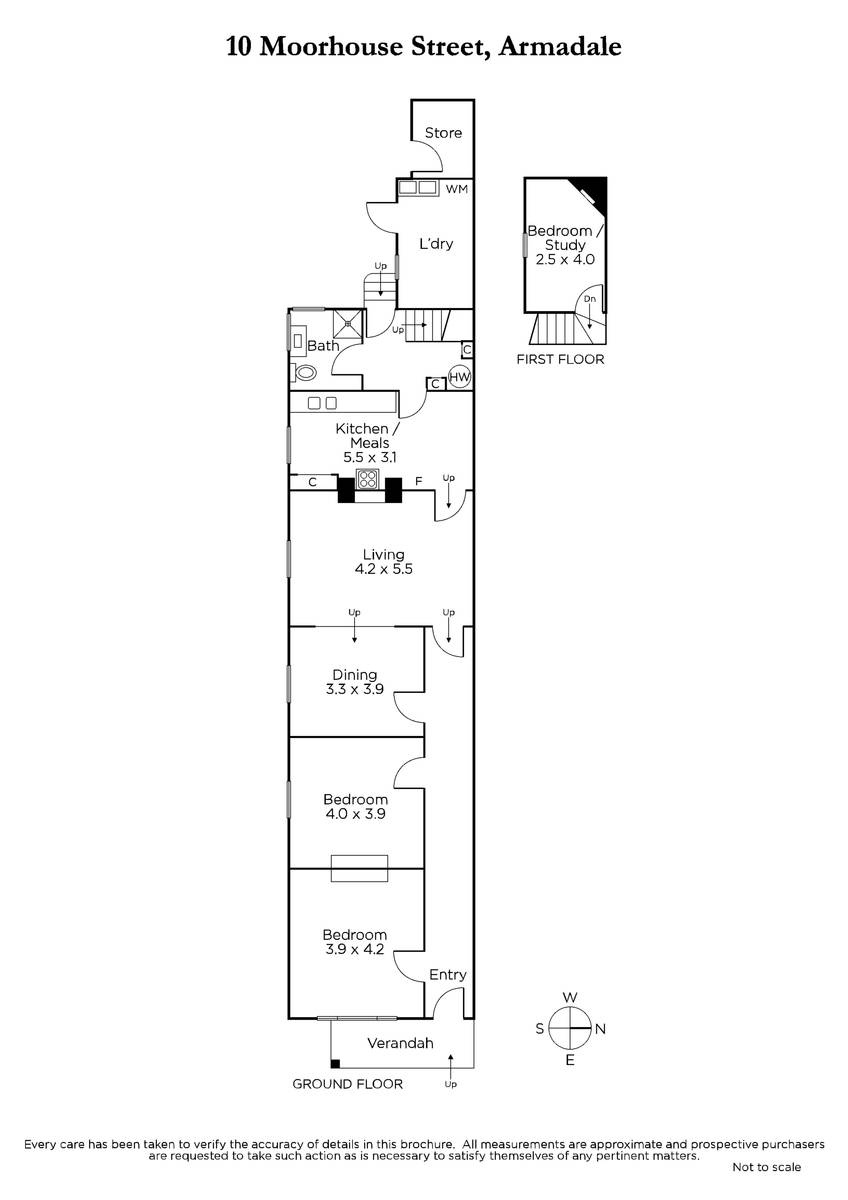
Pressed metal ceilings grace the wide arched hallway and generous sitting room or bedroom with built in robe. Versatile additional accommodation comprises a second double bedroom, upstairs study or third bedroom and a stylish bathroom. The expansive living and dining rooms are served by a large capable kitchen with casual dining area leading out to a private west facing garden.
Just a short walk to Armadale station, trams and elite schools, it includes a gas heater, laundry, large storeroom and off street parking.
Enquire about this property
Request Appraisal
Welcome to Armadale 3143
Median House Price
$2,345,000
2 Bedrooms
$1,758,500
3 Bedrooms
$2,325,000
4 Bedrooms
$4,317,500
Armadale, situated just 7 kilometres southeast of Melbourne’s CBD, is a charming suburb celebrated for its sophisticated blend of heritage and modernity, particularly in its real estate offerings.














