Sold10 Blanche Street, Brighton East
Contemporary Family Living in Enviable Locale
Expressions of Interest Close Tuesday 7th June at 5pm
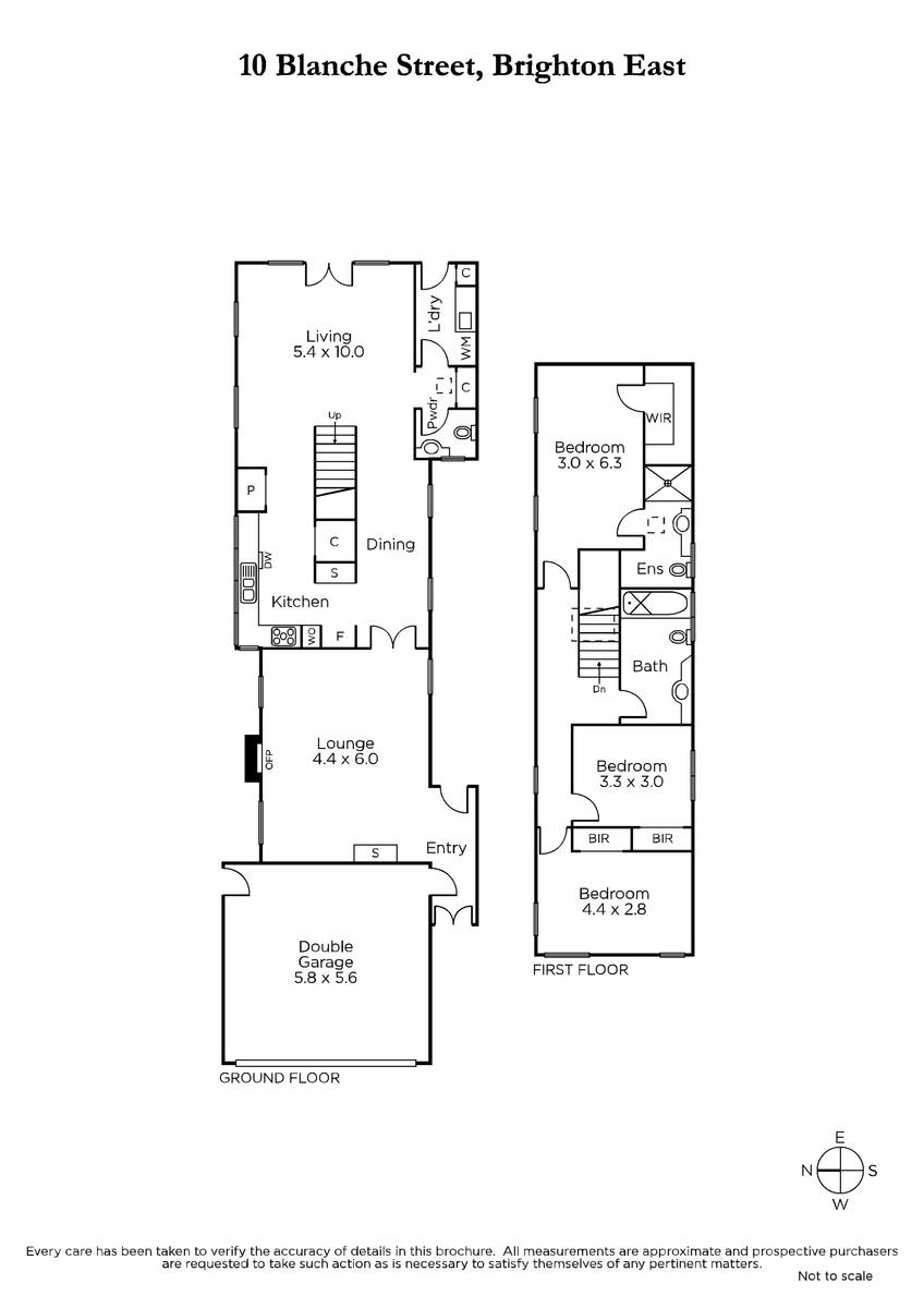
Perfectly located to enjoy all elements of Brighton's enviable lifestyle, this spacious, impeccably maintained two-level contemporary residence will impress with its free-flowing design, family-friendly layout and delightful 'no maintenance' alfresco areas.
Modernist lines and effortless open-plan indoor/outdoor liveability is apparent from the entry. Elegant, dark-stained bamboo flooring flows through an expansive living area, with open fireplace, then meanders through the well-equipped and laid-out central kitchen with granite benchtops, to a light-filled living/dining area with a glorious verdant backdrop. Full-height glass French doors open out to the paved alfresco courtyard lined with lush tropical garden beds, creating a private oasis, which receives sun for most of the day. There is also a full-size laundry with external access and a powder room downstairs. The central open staircase, topped with a large skylight, leads to three good-sized bedrooms, main with ensuite and WIR, and a spacious family bathroom. Plantation shutters, and split system air conditioners are fitted in all bedrooms. A remote-operated double lock-up garage has internal access, and there is plenty of storage space throughout including under-stair storage. The kitchen has quality stainless steel appliances including a Smeg oven and Miele gas cooktop, plus a large pantry and appliance cupboard, both with power outlets. Includes two gas space heaters as well as split system air conditioners and back-to-base security system.
On a 338sqm (approx.) block, in a quiet, family-friendly street, it is just a few minutes' walk to Old Dairy Reserve, Hampton Street shops, Bay Street shops, North Brighton Station, prestige schools including Brighton Grammar and Firbank, and it is zoned to Brighton Primary and Brighton Secondary College. The Golden Mile beaches are just a brisk 15 minutes' walk away.
Enquire about this property
Request Appraisal
Welcome to Brighton East 3187
Median House Price
$2,109,000
2 Bedrooms
$1,437,500
3 Bedrooms
$1,807,500
4 Bedrooms
$2,382,500
5 Bedrooms+
$2,769,000
Known to be quieter than its neighbours, Brighton East is a highly sought-after location, blending community vibes, heritage aesthetics and a suburban charm that keeps locals loyal to its appealing beachside lifestyle.


















