Sold10 Albert Street, Malvern East
Elegance, Style and Family Excellence
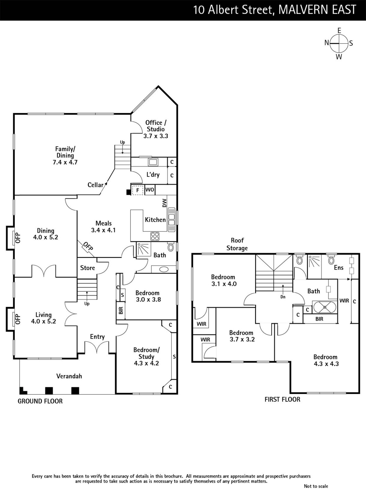
The captivating original elegance displayed by this stunning c1924 heritage listed Inter War home is brilliantly matched by light-filled contemporary style and a versatile and spacious floor-plan that responds impressively to every family requirement. Impeccably presented throughout, the wide timber paneled hallway introduces a refined study, beautiful sitting room (OFP) and formal dining (OFP) all boasting exquisite ceilings and leadlight windows. Timber floors flow through the superbly appointed gourmet kitchen featuring stone benches and European appliances, casual dining area and down to an expansive living room and studio/home office. Sliding doors open out to a picturesque northeast facing private garden surrounded by established trees. A bright bedroom (BIR) and bathroom downstairs are complemented upstairs by the generous main bedroom with stylish en-suite and ample built in robes, two further bedrooms with walk in robes and a smart bathroom with spa-bath. Enviably situated in a tree-lined locale near Waverley Rd shops, cafes and trams, Darling station, great schools and freeway access, it also includes ducted heating and cooling, RC/air-conditioners, wine storage, attic storage, fitted laundry, irrigation, grey water system and double carport with remote door. Land 697sqm approx.
Enquire about this property
Request Appraisal
Welcome to Malvern East 3145
Median House Price
$2,182,500
2 Bedrooms
$1,457,500
3 Bedrooms
$1,930,000
4 Bedrooms
$2,530,500
5 Bedrooms+
$2,962,500
Situated 12 kilometres southeast of Melbourne’s bustling CBD, Malvern East is a suburb renowned for its blend of family-friendly charm and cosmopolitan living.



















