Sold1 Tyrone Street, Camberwell
Family Flexibility with Future Potential
A generous corner allotments sets the backdrop for this attractive mid 1930's family home enviably positioned on the fringe of the leafy Golf Links Estate precinct minutes from a host of Camberwell shopping options, including Leo's Fine Foods Supermarket, Willison Park or Fordham Gardens, an excellent array of public and private schools, doorstep trams and walk to Hartwell station.
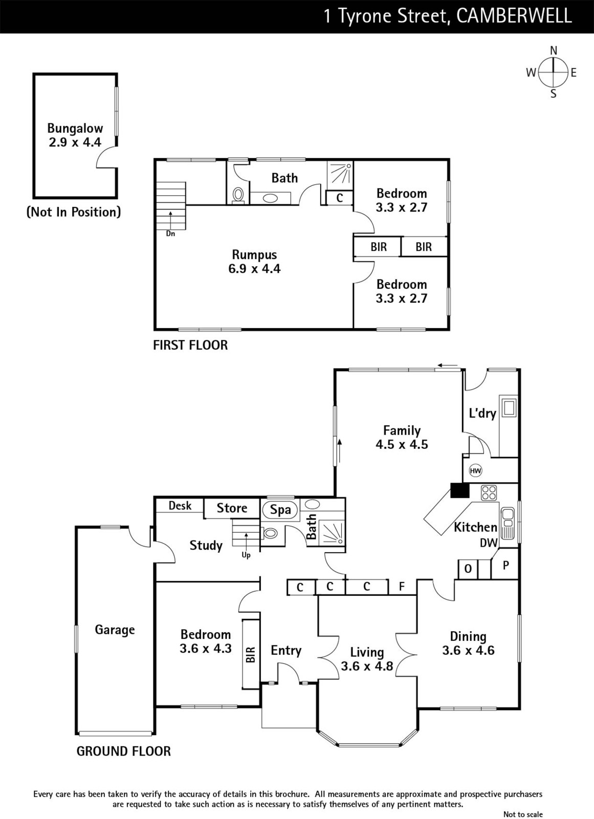
A seamless two storey extension complements its retained period features including decorative ceilings and leadlight cut glass - delivering flexibility plus loads of zoned accommodation for growing families at any stage. With scope for further updating and modernisation if desired, the interior features an entrance hall opening to a sitting room with bay window and double doors to a dining room, downstairs main bedroom, bathroom, study plus a generous informal living and dining room incorporating a contemporary kitchen with Euro appliances and adjacent laundry opening to a north-facing garden, outdoor entertaining area and an external home office or rumpus/games room. Whilst there are two further upstairs bedrooms, huge retreat and a second bathroom, other features of this marvellous family home include ducted heating, R/C air conditioner (retreat) wine storage (under stairs), watering system, remote garage/storage.
Land size: 645sqm (approx.)
Enquire about this property
Request Appraisal
Welcome to Camberwell 3124
Median House Price
$2,608,000
2 Bedrooms
$1,530,000
3 Bedrooms
$2,225,000
4 Bedrooms
$2,604,000
5 Bedrooms+
$3,865,000
Camberwell, located just 9 kilometres east of Melbourne's CBD, stands out as a prominent suburb in the real estate market, renowned for its scenic, tree-lined streets and heritage-rich architecture.














