Sold1 Lyell Street, South Melbourne
Contemporary Urban Living Redefined
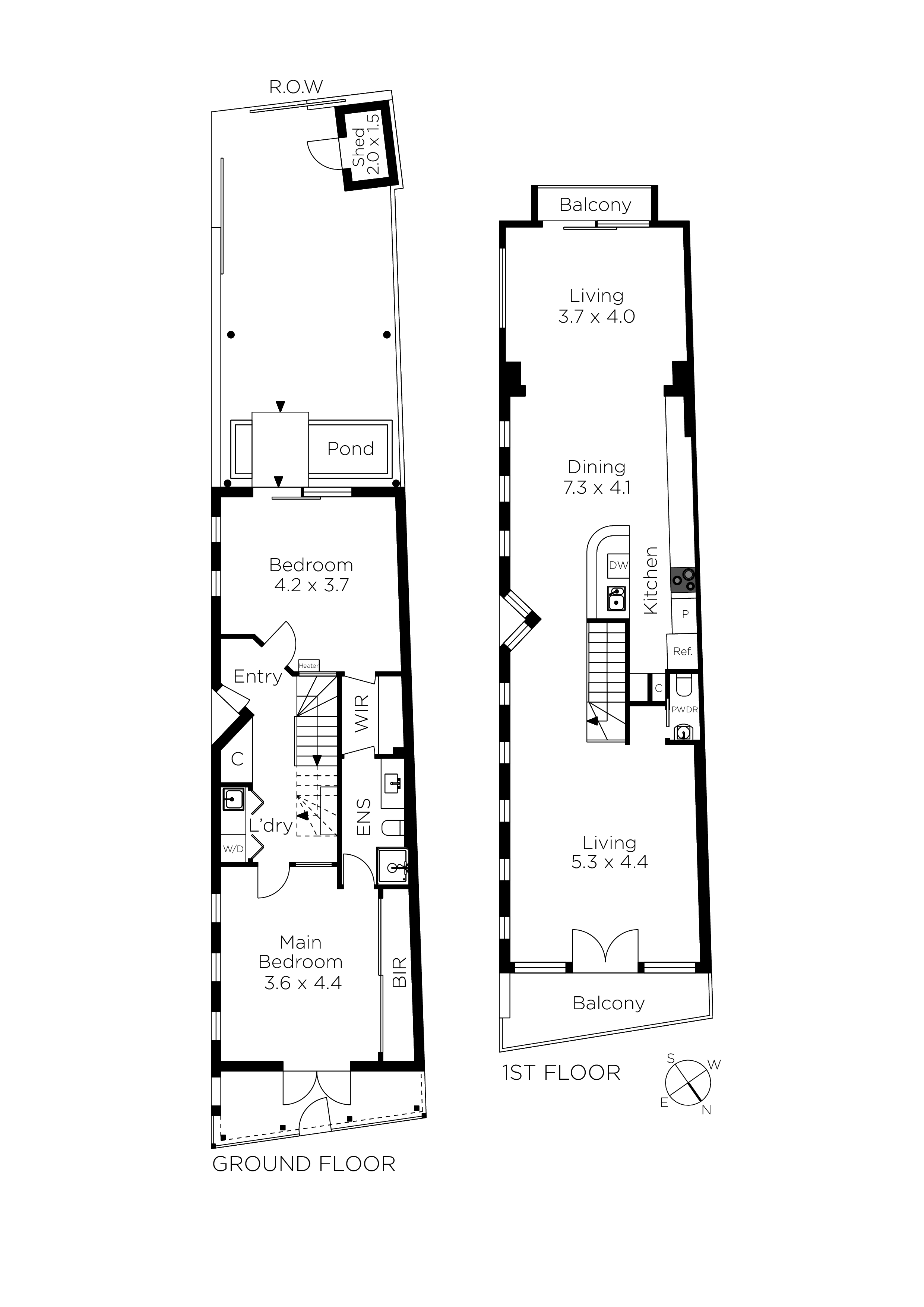
A considered design and meticulous attention to detail are celebrated in this impeccable residence, flawlessly marrying form and function to offer a living experience that makes a lasting impression. Situated within a short stroll of St Vincent Gardens and South Melbourne Market, this custom design and construction by Fasham Homes is a testament to modernist architectural principles, where a focus on simplicity, functionality, and flexibility prevails.
Spanning two levels, the floor plan exudes harmony within each intelligently designed space, fostering an ambiance of openness, interconnectedness, and balance with outdoor areas. Elevated ceilings allow natural light to permeate every corner of the upper level, revealing an open layout that places the kitchen and dining zone at the heart of two inviting living areas. A balcony extends its respective living area outdoors – one north-facing and the other south-facing – offering versatile spaces to bask in the sunlight or seek calm shade, providing an ideal spot for morning coffee or evening relaxation.
At ground level, two bedrooms offer a private retreat, while a contemporary bathroom with a marble vanity complements the home's sleek aesthetic. A northern aspect, leafy outlooks and abundant storage highlight the spacious main bedroom; the other enjoys a walk-through robe and access to the covered alfresco area, offering a tranquil setting for a quiet escape with its serene fish pond, a captivating feature. Zoned for Albert Park College and with Albert Park Village and Bay Street's cafe, retail and dining hubs nearby, this exceptional home features Bosch appliances, a Euro laundry, a powder room, split system air conditioning, heating, a shed, and secure off-street parking via Smith Street.
Enquire about this property
Request Appraisal
Welcome to South Melbourne 3205
Median House Price
$1,705,000
2 Bedrooms
$1,268,000
3 Bedrooms
$1,997,500
4 Bedrooms
$3,057,000
South Melbourne, situated just 2 kilometres from the heart of Melbourne’s CBD, is a vibrant and historic suburb known for its unique blend of cultural heritage, contemporary living, and dynamic community atmosphere.

















