For Sale1 Bell Street, Glen Iris
A Private Oasis
Auction
Inspections
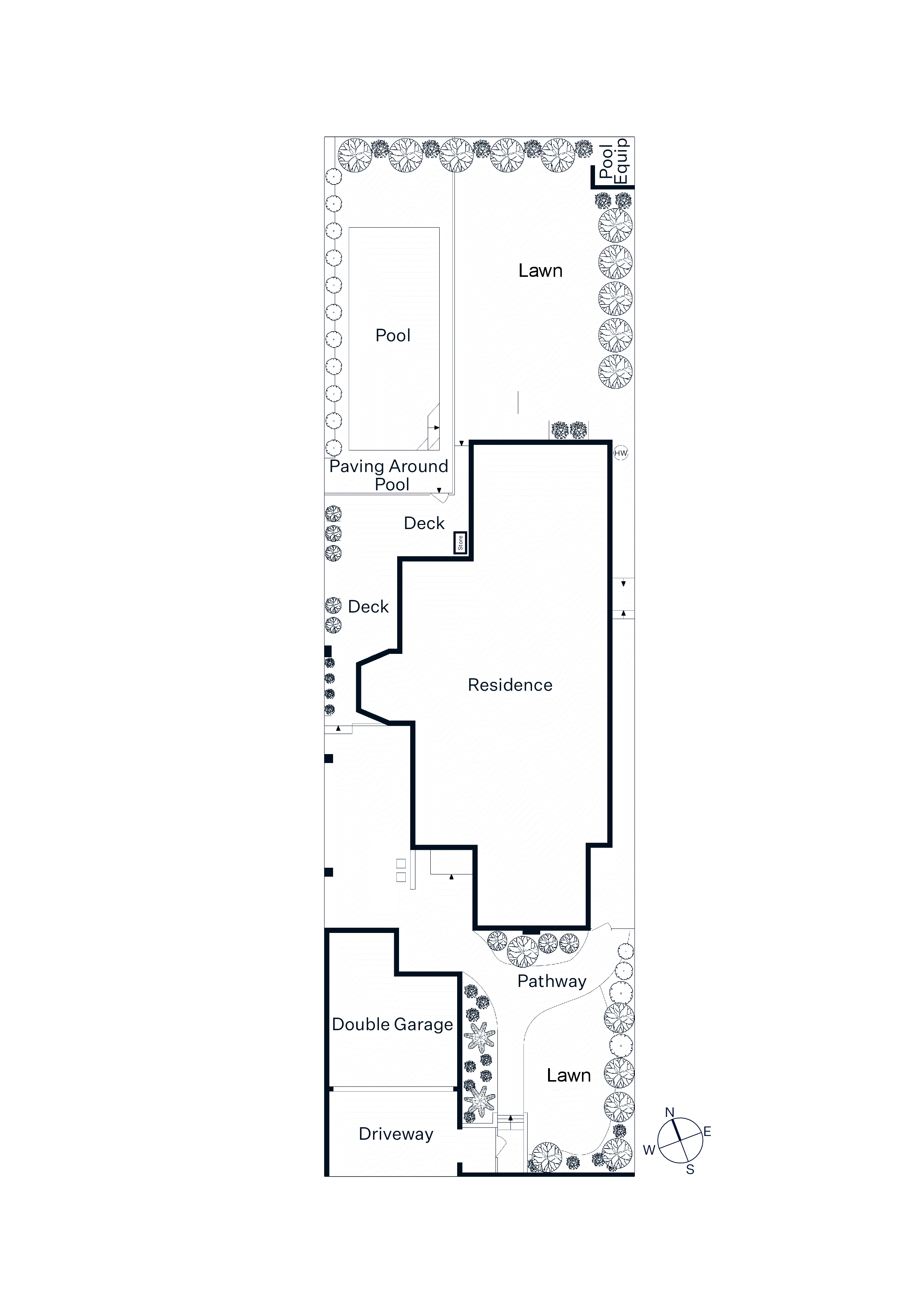
Serenely situated within deep private north-facing garden and pool surrounds, this previously renovated single level solid brick residence’s expansive living spaces and 4 - 5 bedroom accommodation effortlessly adapts as a family’s requirements evolve.
Peacefully set behind a high walled garden, the entrance hall introduces a graciously proportioned formal dining with fireplace and a light-filled sitting room. Expansive conservatory style family dining and a spacious living area are served by a gourmet kitchen appointed with stone benches and 90cm Smeg oven. The living spaces open out to a large, decked area overlooking the deep leafy north-facing private garden and an impressive solar/gas heated fully tiled pool with a retractable solar blanket. A separate accommodation wing comprises the main bedroom with built in robe and ensuite, three additional robed bedrooms, a home office or 5th bedroom with robes and two further bathrooms.
This desirably situated property is surrounded by numerous parks and walking tracks, is only metres from Ferndale Park, Glen Iris Rd cafes, and is close to an array of shops, schools, and public transport options. The home includes an alarm, video intercom, ducted heating, refrigerative cooling, ducted vacuum, powder-room, laundry, irrigation and double garage with storage. Land size: 743sqm approx.
Enquire about this property
Request Appraisal
Welcome to Glen Iris 3146
Median House Price
$2,512,667
2 Bedrooms
$1,487,084
3 Bedrooms
$2,168,333
4 Bedrooms
$2,690,000
5 Bedrooms+
$3,755,000
Glen Iris, situated approximately 10 kilometres southeast of Melbourne's CBD, is a well-established and affluent suburb known for its leafy streets, spacious parks, and prestigious schools.





















