Sold1/5B Dalgetty Road, Beaumaris
Luxury Oasis Metres from the Beach
Inspection strictly by appointment only
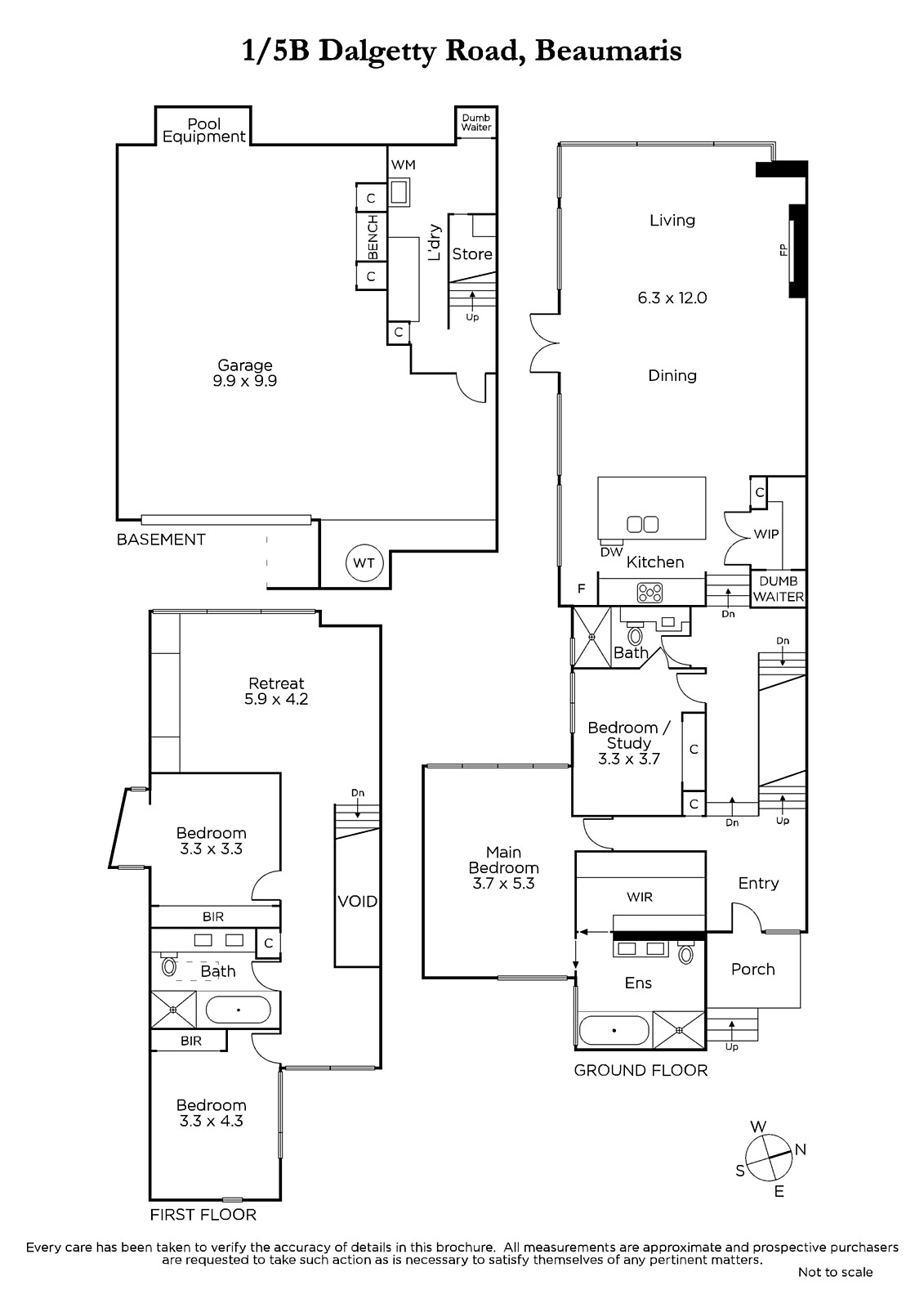
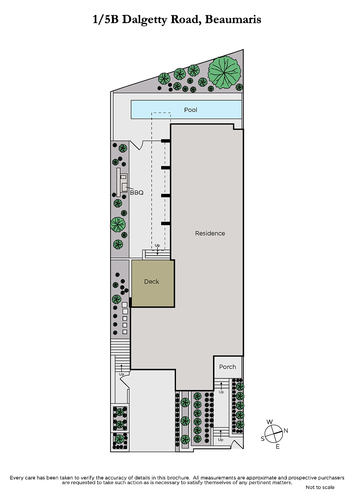
Exceptional design has created an exclusive home full of light and luxury, 250 metres from the beach and an easy walk to Concourse shops and cafes. Three levels of spaciousness and landscaped outdoor living with a self-cleaning lap pool are enhanced with high-end finishes and features. Superb living spaces on two levels offer family-friendly zoning, there's four bedrooms and three marble bathrooms, marble kitchen with dumb waiter and Smeg appliances, and a three-car basement garage with generous storage space. Feel at home in the tranquil family room, edged on one side by the heated pool and designed with a pebble gas fireplace, stone flooring, floating cabinetry, surround sound speakers and inset TV. Innovation shows in every room, including the children's lounge with stone-topped cabinetry, ceiling speakers and big windows for plenty of natural light. Fine craftsmanship has created a streamlined timber and glass staircase, polished plaster feature walls, and premium joinery. Wake up to tranquil views in the parents' retreat and love the inclusion of a custom-made bedhead and bedside tables, ensuite with marble vanity and a bath, sensor-lit walk-in wardrobe, and remote-control blinds. Everything you want in a deluxe home is here, with app-operated C-Bus lighting and security features, 31 solar-power panels, zoned ducted heating and air conditioning, and first-class street appeal. Outside is just as wonderful with a dining terrace, built-in stainless steel barbecue and sink, a shower next to the palm-fringed pool, and garden lighting. Inspection essential to admire the space, style and sought-after beachside location.
Enquire about this property
Request Appraisal
Welcome to Beaumaris 3193
Median House Price
$2,100,000
2 Bedrooms
$1,325,000
3 Bedrooms
$1,800,000
4 Bedrooms
$2,286,250
5 Bedrooms+
$2,854,000
Beaumaris, 20 kilometres southeast of Melbourne's CBD, is a coastal suburb known for its stunning beaches and cliff-top parks.























