Sold1/28 Power Street, Toorak
Remarkably Sized and Filled with Northerly Light
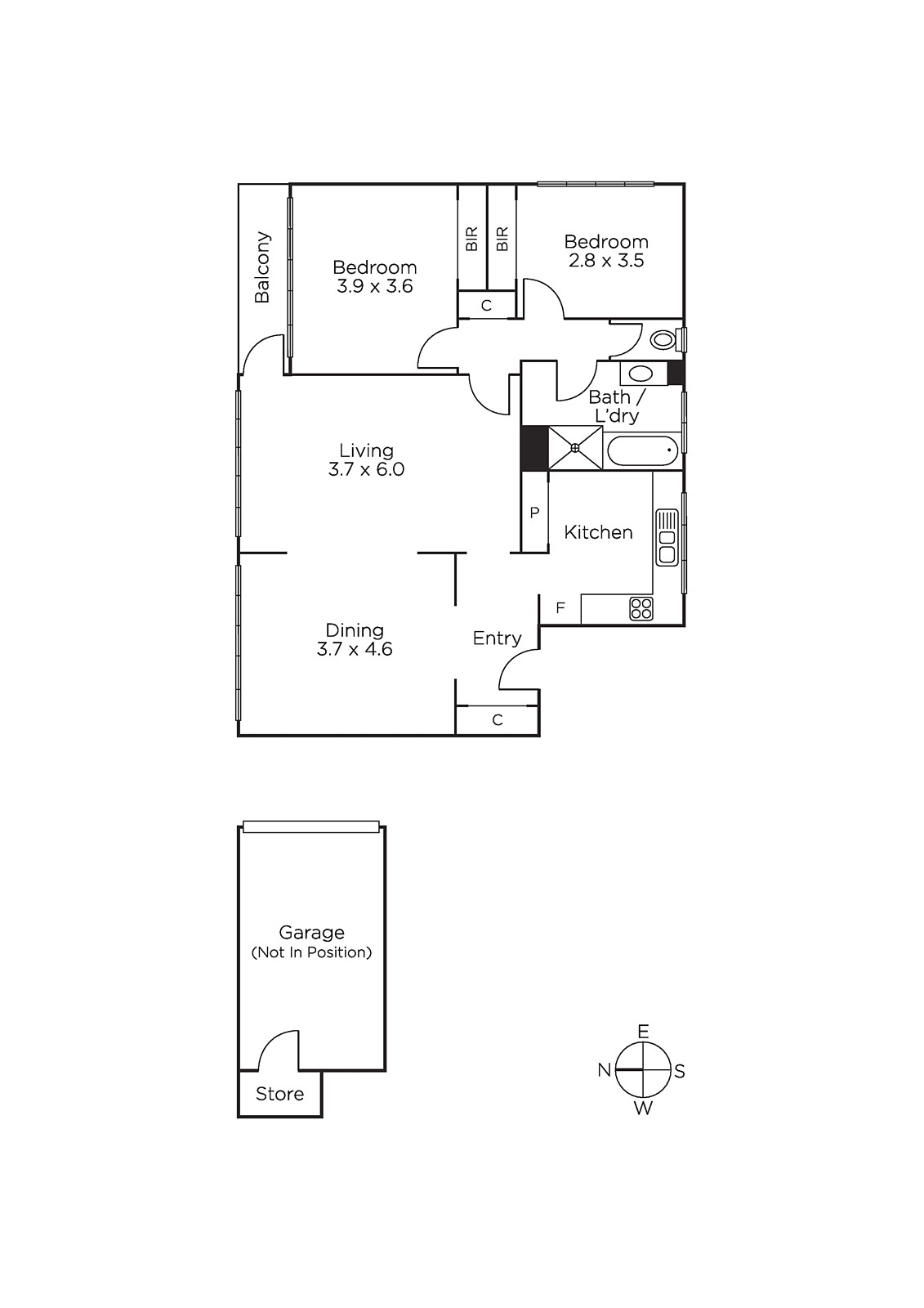
A rare offering indeed, this two bedroom apartment is differentiated both by its highly impressive dimensions and by the privilege of the northerly light that fills its abundant living spaces. Distinctively mid-20th Century in its character, the home is one of only six and just metres from cafes and transport, ensuring that it is an outstanding first home or investment that is brimming with unique points of differentiation. Inside a formal entry, the home delivers a genuine separation of living spaces that also allows an easy flow from kitchen to lounge and to dining. The kitchen is comfortable with gas cooking, a dishwasher and leafy outlooks, whilst the living and dining rooms also enjoy attractive vistas, the bedrooms have robes and the bathroom is large with an independent bath and shower. A garage underneath, a store room and attractive common gardens are wonderful inclusions in this remarkably large apartment. Exclusively situated moments from Kooyong Village, this outstanding home allows you or your lucky tenants to enjoy the fruits of not only a great local cafe culture, but also Glenferrie Rd shopping, easy city commuting via Kooyong Railway Station, Glenferrie Rd and Toorak Rd trams, as well as plenty of parkland and bike paths along Gardiners Creek.
Enquire about this property
Request Appraisal
Welcome to Toorak 3142
Median House Price
$5,008,888
2 Bedrooms
$2,460,000
3 Bedrooms
$3,580,000
4 Bedrooms
$6,350,000
5 Bedrooms+
$13,500,000
Toorak, an emblem of luxury and prestige, stands as Melbourne's most illustrious suburb, located just 5 kilometres southeast of the CBD.











