Sold1/22 Denbigh Road, Armadale
'Denbigh Mews': Timelessly Renovated Armadale Style
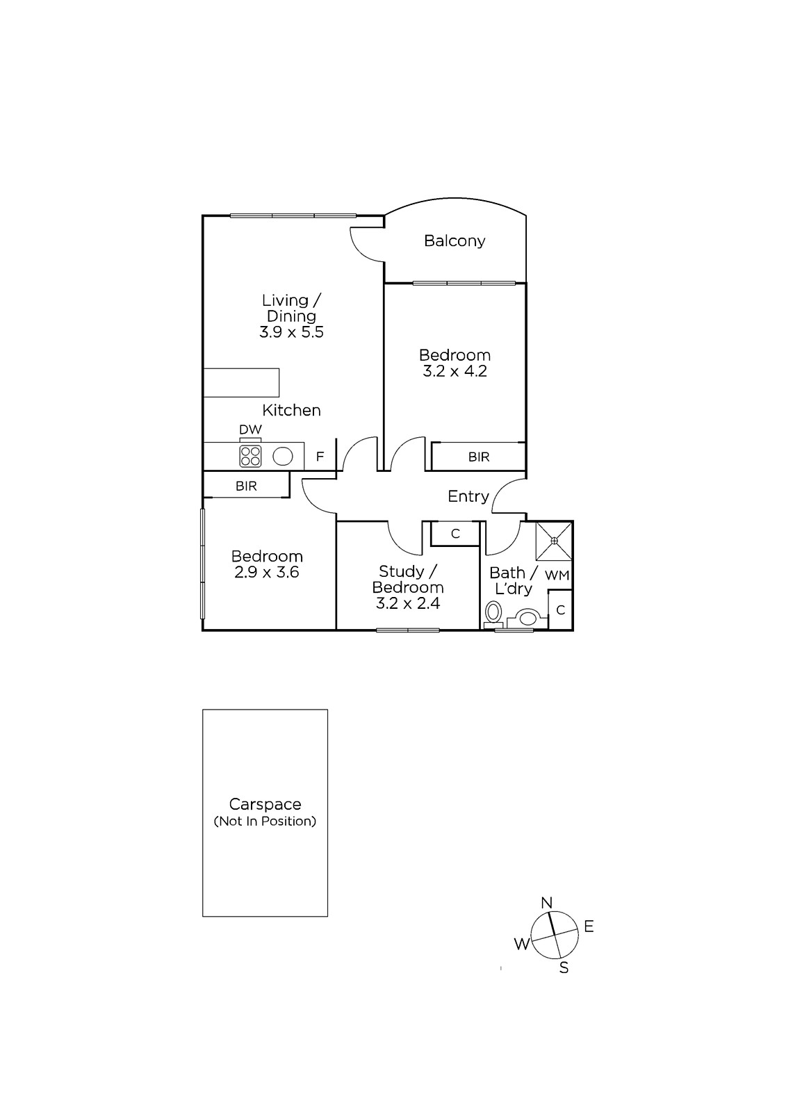
Offering the rarely found flexibility of a third bedroom, this brilliantly positioned and timelessly vogue, mid 20th Century apartment is a delightful, north-facing, discovery in one of Armadale's most attractive, sought-after and tree-lined streets. Nestled within attractive gardens, the home combines the joy of a dynamic urban lifestyle with investment credentials that are impossible to ignore.
A partially granite kitchen with stainless steel appliances and timber cabinetry is gracefully appointed to compliment beautiful parquetry flooring and filled with northerly light as it flows to a sunny balcony. Securely accessed via intercom entry and with the privilege of parking at the rear of the block, the home enjoys attractive garden outlooks and features two impressive double bedrooms with built-in robes, whilst the third bedroom could readily be used as a study. Also features a fully-tiled bathroom / laundry that makes a statement in vogue styling, plus split system heating and cooling.
Tucked away in one of the area's most prestigious streets near Armadale Railway Station and within walking distance of trams along either High St or Wattletree Rd, the promise here is one of easy city access, as well as a lifestyle enriched by the renowned cafes of High St, its boutique shopping and fine dining, plus you have Malvern Central Shopping Centre just around the corner and Glenferrie Rd moments away.
Enquire about this property
Request Appraisal
Welcome to Armadale 3143
Median House Price
$2,808,333
2 Bedrooms
$1,748,667
3 Bedrooms
$2,338,333
4 Bedrooms
$4,455,834
Armadale, situated just 7 kilometres southeast of Melbourne’s CBD, is a charming suburb celebrated for its sophisticated blend of heritage and modernity, particularly in its real estate offerings.













